【専任】中古戸建 / 萩山町1丁目

価格
3,097万円
中古戸建
間取
3LDK
所在地 東京都東村山市萩山町1丁目  萩山町一丁目戸建
交通 西武拝島線 萩山駅 徒歩4分
西武新宿線 小平駅 徒歩11分
  • 築年月 2005/06
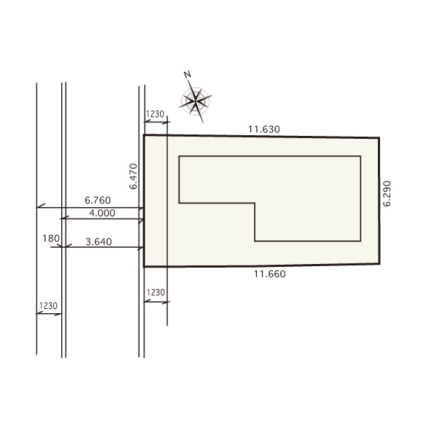
  • 敷地全体面積 75.66m²
  • 延べ床面積 59.4m²
  • 建物構造 木造

POINT

    R8年4月 新規リフォーム完了済   

〇弊社のみ販売の未公開物件
〇西武拝島線「萩山」駅徒歩4分・西部新宿線「小平」駅徒歩11分
〇2線2駅利用可
〇南側バルコニー
〇全室2面採光
〇出窓
〇24h換気システム
〇LDK3面採光
〇カースペース有

(間取) 施工例となります(外観) 区画図 3面採光で明るい室内(居間) (居間) (居間) (居間) (居間) 洋室 洋室 システムキッチン・食洗機・浄水器・3口コンロ(キッチン) 浴室乾燥機・追い焚き・窓あり(風呂) シャワー水栓付洗面台 温水洗浄便座 シューズボックス・ダブルロックドア(玄関) 施工例となります (地図) (居間)
Loading...
※物件掲載内容と現況に相違がある場合は現況を優先と致します。

物件詳細情報

築年月 2005/06 新築/中古 中古
面積 計測方式
バルコニー 向き 南西
建物階数 地上2階  部屋階数
部屋/区画番号 総戸/区画数 1
建物構造 木造
敷地全体面積 75.66m² 延べ床面積 59.4m²
間取内容 LDK11.37畳 2階   洋室5.2畳 2階   洋室5.2畳 1階   和室4.5畳 1階   
駐車場 空有 1台 取引態様 専任
引渡/入居時期 相談 現況 空家
地目 宅地 用途地域 第一種低層住居専用
都市計画 市街化区域 地勢 平坦
建ぺい率 50% 容積率 100%
土地権利 所有権 接道状況 一方
接道方向1 西 接道間口1 6.4m
接道種別1 公道 接道幅員1 3.7m
周辺環境 東村山市立萩山小学校 590m 東村山市立東村山第三中学校萩山分校 120m
スーパーあまいけ萩山駅前店 約340m
ローソンストア100東村山萩山店 約520m
萩山駅前郵便局 約80m
萩山公園 230m
れんげ萩山保育園分校 270m
ドラッグフォーユー小平店 830m
設備・条件 三口コンロ システムキッチン 食器洗い乾燥機 給湯 追い焚き 洗髪洗面化粧台 独立洗面台 バス専用 シャワー 浴室乾燥機 トイレ専用 バス・トイレ別 室内洗濯機置き場 TVドアホン 公営水道 排水下水 駐車場有 駐輪場 バイク置き場 出窓 バルコニー フローリング
物件番号
自社物 状態 売出中
特記事項 第1種高度地区・準防火地域
----------------------------------------------------------------
【リフォーム内容詳細】
■水回り :キッチン、浴室、トイレ、洗面所、給湯器
■内装 :全室クロス張替え、壁・天井(クロス・塗装等) 、建具(室内ドア等)、網戸
障子、下駄箱、照明、ハウスクリーニング他
■外装 :外壁塗装、ベランダ塗装

お問い合わせ先

ラウンジ (株)ワールド・ベイ・スクウェア
交通: 相鉄本線/天王町 徒歩8分
住所: 神奈川県横浜市保土ヶ谷区宮田町1丁目17番地6 Villa横浜101
TEL: 045-465-6306  FAX: 045-465-6307
所属団体: (公社)全日本不動産協会会員
免許番号: 神奈川県知事免許(2)第29201号 (公社)首都圏不動産公正取引協議会加盟

お問い合わせフォーム