1F 事務所付 店舗 ”松原商店街”
〇相鉄線「天王町」駅徒歩8分
〇活気ある松原商店街1階角地
〇事務所付の店舗
〇業種ご相談ください
|
|
| 所在地 | 神奈川県横浜市保土ケ谷区宮田町1丁目 シャルム上原 |
|---|---|
| 交通 | 相鉄本線 天王町駅 徒歩8分 相鉄本線 西横浜駅 徒歩11分 相鉄本線 星川 駅 徒歩16分 |
1F 事務所付 店舗 ”松原商店街”
〇相鉄線「天王町」駅徒歩8分
〇活気ある松原商店街1階角地
〇事務所付の店舗
〇業種ご相談ください
| 築年月 | 1994/04 | 新築/中古 | 中古 |
|---|---|---|---|
| 面積 | 80.37m² | 計測方式 | 壁芯 |
| バルコニー | 向き | ||
| 建物階数 | 地上3階 | 部屋階数 | 1階 |
| 部屋/区画番号 | 1F | 総戸/区画数 | |
| 建物構造 | 鉄骨造 | ||
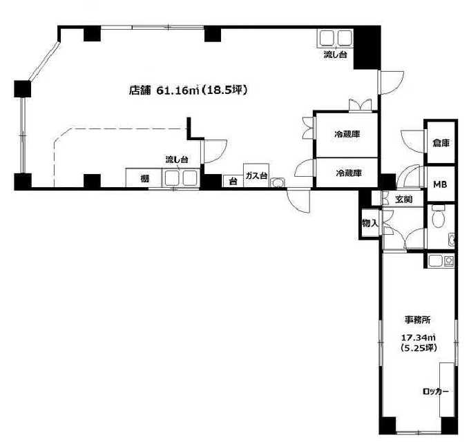
| 間取内容 |
|
||
| 駐車場 | 取引態様 | 仲介 | |
| 引渡/入居時期 | 相談 | 現況 | 空家 |
| 地目 | 宅地 | 用途地域 | |
| 周辺環境 | |||
| 設備・条件 | スケルトン渡し ■賃貸保証:加入要 ※初回保証料(家賃+管理費等)100%、年間保証料要確認 |
||
| 物件番号 | |||
| 自社物 | 先物 | 状態 | 空有 |
| 特記事項 | 〇保証金償却:解約時7.5万円 〇業種応相談 〇保険料:業種による 〇スケルトン渡し 〇シャッター:有 〇賃料から共用部分電気代使用料1,650円を相殺いたします 〇使用部分面積:店舗61.16㎡/事務所17.34㎡ |
||
ラウンジ (株)ワールド・ベイ・スクウェア
交通: 相鉄本線/天王町 徒歩8分
住所: 神奈川県横浜市保土ヶ谷区宮田町1丁目17番地6 Villa横浜101
TEL: 045-465-6306 FAX: 045-465-6307
所属団体: (公社)全日本不動産協会会員
免許番号: 神奈川県知事免許(2)第29201号 (公社)首都圏不動産公正取引協議会加盟